Manchester Airport Car Park
Case Study
Client:
Manchester Airport
Lead Consultant:
TBC
Project Overview:
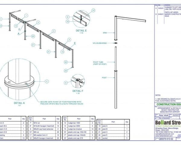
The design manufacture and installation of a bespoke multi lane height restrictor unit to suit the individual traffic lanes of the automatic rising arm barrier system to the car park.
Each section was specifically designed to suit the individual width of the road and each lane. The swivelling arm facility allowing periodic access for ‘taller’ vehicles as and when required.
Product supplied:
Bespoke mild steel height restrictor unit manufactured in 100 x100 Square hollow section steel (SHS) support post, cross bar 150 x 50 (RHS), nylon bushes for the pivoting posts. Hot dipped galvanised to BS EN ISO 1461: 2009. Class 1 retro reflective bands in red for visibility.
Height designation signage to the underside of top beams in aluminium
Product code: Multi lane height restrictor




