Bespoke Stainless Steel Canopy For Deepdale Primary School Preston
Case Study
Client:
Lancashire County Council
Lead Consultant:
Lancashire County Council Architects Department
Project Overview:
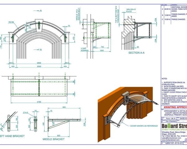
The supply and installation of a bespoke stainless steel canopy fitted above the main school entrance façade. Bollard Street Ltd successfully bid and secured the sub contract order to supply and install the bespoke canopy to be fixed to the existing ‘key stones’ on the building main entrance. After submitting detailed drawings and a 3D model for the proposed canopy structure after a full site survey, the canopy was manufactured and bolted to the existing sandstone keystones with suitable stainless steel fixings. The ‘gallows bracket’ design was manufactured in 316 grade stainless steel to exacting tolerances manufactured from precision laser cut profiles and covered with PETG glazing. Finally structural calculations where submitted to the client and contractor to prove compliance of all required loadings.
Product supplied:
Gallows bracket design stainless steel bespoke canopy unit



